NOVEL WORK Gotanda 2階
この部屋の賃貸条件
賃料が「相談」と表記された物件はお問い合わせください
- 所在地
- 品川区東五反田4
- 交通
- 都営浅草線 五反田駅 5分
- 所在階
- 2階
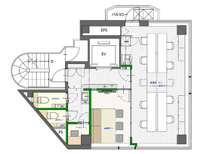
- 面積
- 21.19坪
- 賃料
- 620,000円
- 共益費
- 坪単価
- @29,259
- 敷金
- 1ヶ月
- 礼金
- 償却
- 1ヶ月
- 物件の現況
- 現空
- その他
物件概要
- 所在地
- 品川区東五反田4
- 交通
- 都営浅草線 五反田駅 5分
- 規模
- 地上12階 / 地下1階
- 物件築年
- 1988年
- 構造
- SRC
- 駐車場有無
ビル主要設備
EV設備:1基





